We've Broken Ground!
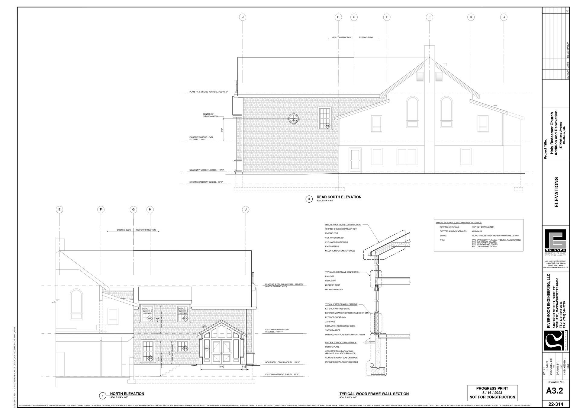
July 18th, 2023- At Holy Redeemer Church, Pastor John Sullivan and architect Tom Palanza (Palanza Group of Mansfield) recently broke ground for the Church's $3 million addition and renovation project. The project is scheduled for completion in the Spring of 2024.









